咨询电话:17274813294

东方金融中心

免中介费 赠免租期 交通便利 中心商务区 地标建筑 知名物业 繁华商圈 独栋写字楼 纯写字楼 更新时间:2025-10-31 / 浏览:313

东方金融中心

毛坯,488.49㎡,104007.66元/月

黄嘉良 18612921301

104007.66元/月  7.10元/㎡/天包含物业
  • 装修情况

    毛坯

  • 支付方式

    押一付一

  • 楼盘名字

    东方金融中心

  • 所在地址

    朝阳区 - 望京 - 朝阳区将台地区花园路5号

  • 面积

    488.49㎡

  • 类型

    纯写字楼

  • 所在楼层

    30层/低层

黄嘉良 置业管家
18612921301
概况
  • 104007.66元/月
  • 新房写字楼
  • 488.49㎡
  • 押一付一
  • 甲级
  • 纯写字楼
  • 36
  • 30层/低层
  • 70
  • 毛坯
  • 0
  • 可注册
  • 东方金融中心
  • 不可分割
  • 朝阳区将台地区花园路5号
  • 暂无数据
描述

东方金融中心 十层

——————————

丽都商圈核心超甲写字楼商业综合体,坐拥20公顷生态公园,毗邻第三使馆区,荣获LEED金级认证。


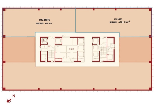
推荐楼层:

10层1001单元,建筑面积488.49㎡。


项目优势:

*丽都商圈甲级写字楼地标项目

*成熟商圈,国际化氛围浓厚,商务配套完善

*生态环境优越,闹中取静

*毗邻四环路及机场高速,交通便利,距各主要商务核心区及首都机场20分钟可达;地铁12号线2024年开通,连通多条地铁线路,通勤便利

*景观开阔,四面采光,360度无遮挡

*无柱式空间,3米净高

*楼层设计室内花园氧吧


周边配套